
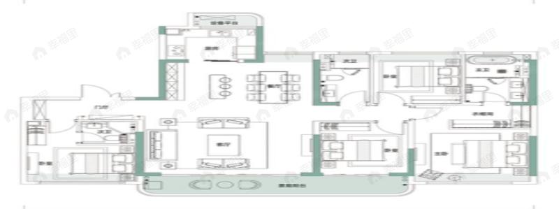
3室2厅2卫
约358万/套
均价
25942元/平
建面
138m²
朝向
南|北
分布
3号楼、11号楼、12号楼
描述
【采光通风】厨房有窗户,保证了厨房的通风换气,做饭时油烟味能更快的流通。
所属楼盘
德商彰泰佳兆业翡丽天玺
项目地址
高新二路与高科园二路交汇处
楼盘信息仅供参考,请以开发商公示为准
平台展示的房源、户型图等信息由第三方提供或根据第三方提供的资料提供的非标准图样、数据,仅供参考,具体以房产证载明信息、您委托的专业机构测量结果或房屋交易合同中披露的信息为准,请您谨慎核查。

3室2厅2卫
均价
25942元/平
建面
138m²
朝向
南|北
分布
3号楼、11号楼、12号楼
描述
【采光通风】厨房有窗户,保证了厨房的通风换气,做饭时油烟味能更快的流通。
所属楼盘
德商彰泰佳兆业翡丽天玺
项目地址
高新二路与高科园二路交汇处