
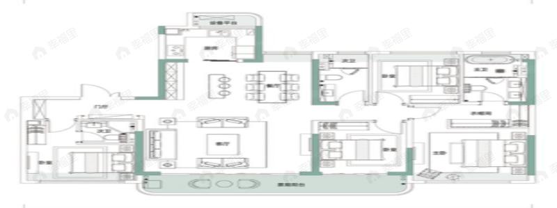
3室2厅2卫
约320万/套
均价
22535元/平
建面
142m²
朝向
北|南
分布
12号楼
描述
【采光通风】房子南北方向均有窗户,开窗时形成空气对流,帮助房间通风换气,两面都能采光,房间更加明亮。 【格局形态】户型格局方正,开间进深比例合理,没有溢出的边角,居住起来较为舒适。 【功能分区】洗漱区和洗手间分离,洗漱和上洗手间可以单独行动,互不干扰,提升居住便利度。
所属楼盘
德商彰泰佳兆业翡丽天玺
项目地址
高新二路与高科园二路交汇处
楼盘信息仅供参考,请以开发商公示为准
平台展示的房源、户型图等信息由第三方提供或根据第三方提供的资料提供的非标准图样、数据,仅供参考,具体以房产证载明信息、您委托的专业机构测量结果或房屋交易合同中披露的信息为准,请您谨慎核查。



