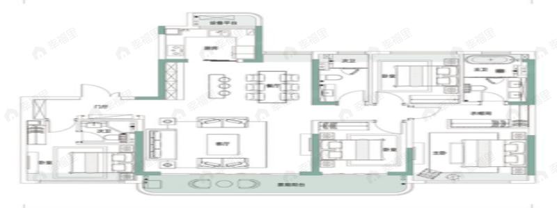
德商彰泰佳兆业翡丽天玺4室2厅3卫户型图德商彰泰佳兆业翡丽天玺4室2厅3卫户型图

4室2厅3卫

在售

400万/套

均价

24691元/平

建面

162m²

朝向

北|南

分布

10号楼

描述

【功能分区】干湿分离,保证了柜子的干燥,避免柜子潮湿发霉的问题。

所属楼盘

德商彰泰佳兆业翡丽天玺

项目地址

高新二路与高科园二路交汇处

楼盘信息仅供参考,请以开发商公示为准
平台展示的房源、户型图等信息由第三方提供或根据第三方提供的资料提供的非标准图样、数据,仅供参考,具体以房产证载明信息、您委托的专业机构测量结果或房屋交易合同中披露的信息为准,请您谨慎核查。