慕客天第效果图慕客天第效果图

慕客天第

售罄

医院周边

近主干道

均价

23000元/平

总价

90万/套起

用途

商业

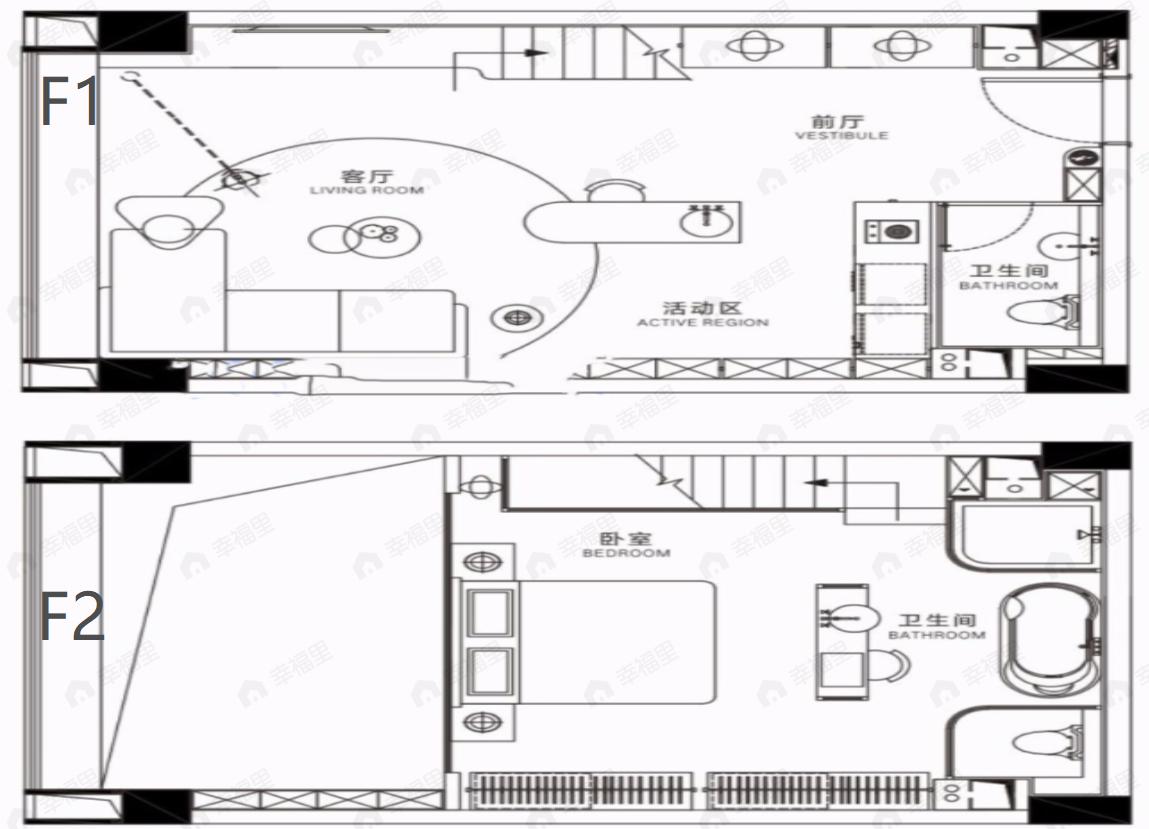
户型

1居

建面

45-64平

装修

非毛坯

慕客天第

[雁塔-科技路]科技路6号

慕客天第变价通知

变价通知

慕客天第开盘通知

开盘通知

平台展示的房源、户型图等信息由第三方提供或根据第三方提供的资料提供的非标准图样、数据,仅供参考,具体以房产证载明信息、您委托的专业机构测量结果或房屋交易合同中披露的信息为准,请您谨慎核查。