

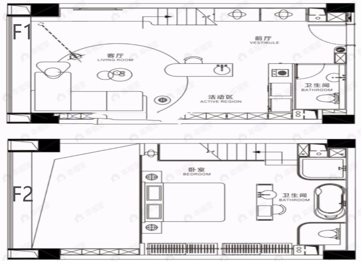
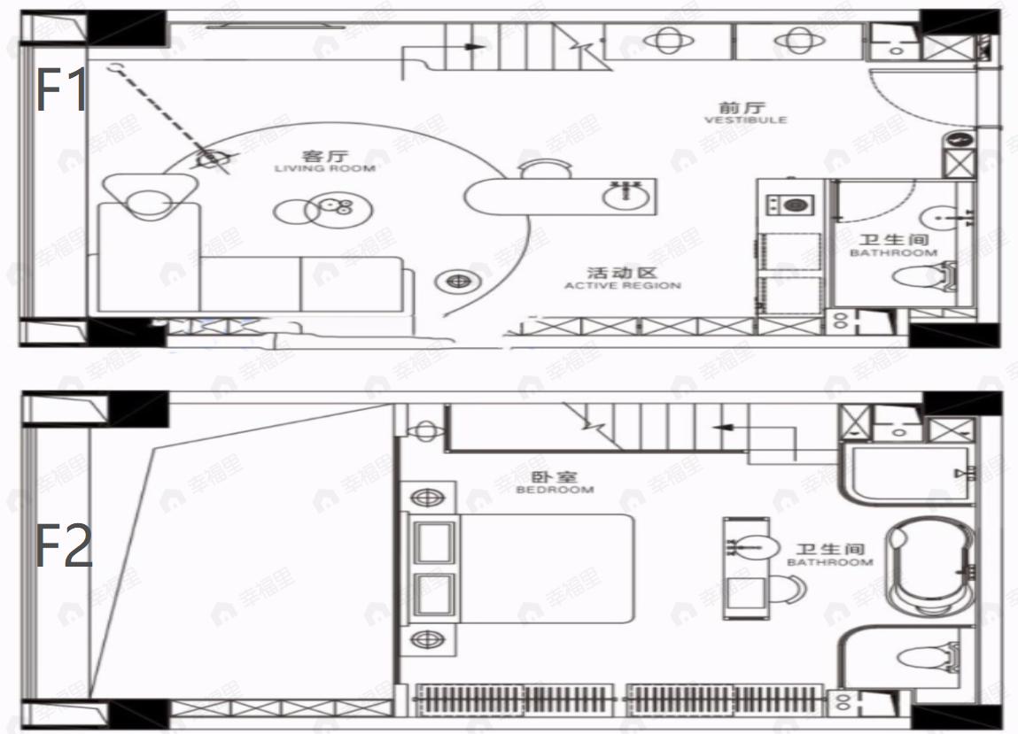
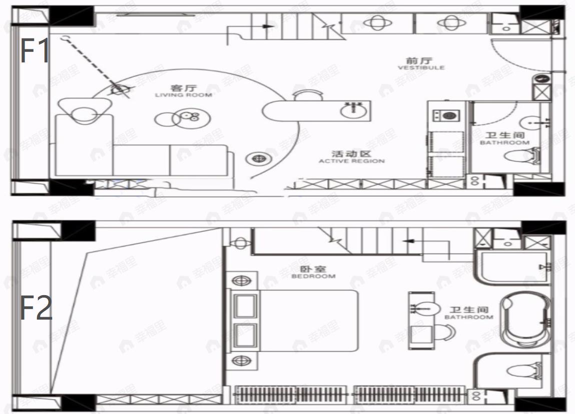
1室2厅2卫
约142万/套
均价
24912元/平
建面
57m²
朝向
东
分布
1号楼
描述
【格局形态】户型开间进深比例合理,没有溢出的边角,居住起来较为舒适。 【功能分区】动静分离,能放心的在动区活动,不用担心打扰到休息或学习的人。
所属楼盘
慕客天第
项目地址
科技路6号
楼盘信息仅供参考,请以开发商公示为准
平台展示的房源、户型图等信息由第三方提供或根据第三方提供的资料提供的非标准图样、数据,仅供参考,具体以房产证载明信息、您委托的专业机构测量结果或房屋交易合同中披露的信息为准,请您谨慎核查。




