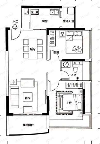
3室2厅2卫
在售
均价
6800元/平
建面
111m²
朝向
南
分布
-
描述
【采光通风】每个房间都有窗户更利于通风采光,避免房间潮湿和闷热的问题。
所属楼盘
景泰蓝湾
项目地址
景泰二路与惠福街交叉口东北角
2室2厅1卫 84平
3室2厅2卫 111平