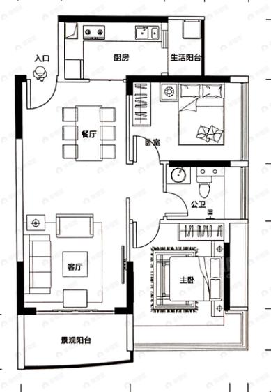
景泰蓝湾2室2厅1卫户型图

2室2厅1卫

在售

57万/套

均价

6800元/平

建面

84m²

朝向

分布

-

描述

【采光通风】每个房间都有采光通风的窗户,让整个房子都很通透明亮。

所属楼盘

景泰蓝湾

项目地址

景泰二路与惠福街交叉口东北角

楼盘信息仅供参考,请以开发商公示为准
平台展示的房源、户型图等信息由第三方提供或根据第三方提供的资料提供的非标准图样、数据,仅供参考,具体以房产证载明信息、您委托的专业机构测量结果或房屋交易合同中披露的信息为准,请您谨慎核查。