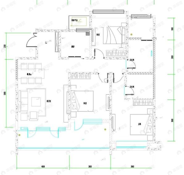
5室2厅3卫
待售
均价
25470元/平
建面
223m²
朝向
北|南
分布
-
描述
【采光通风】每个房间都有采光通风的窗户,让整个房子都很通透明亮。
所属楼盘
众邦长安郡
项目地址
凤城一路明光路以西
3室2厅2卫 143平
3室2厅2卫 168平
4室2厅2卫 174平
4室2厅3卫 193平
4室2厅3卫 213平