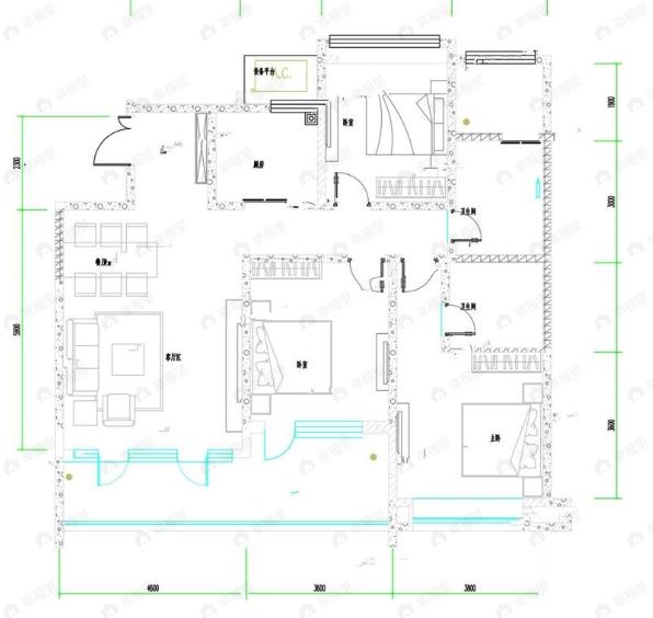
4室2厅3卫
待售
售价待定
均价
建面
213m²
朝向
北|南
分布
-
描述
【采光通风】每个房间都有窗户更利于通风采光,避免房间潮湿和闷热的问题。
所属楼盘
众邦长安郡
项目地址
凤城一路明光路以西
3室2厅2卫 143平
3室2厅2卫 168平
4室2厅2卫 174平
4室2厅3卫 193平
5室2厅3卫 223平