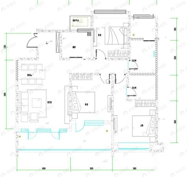
众邦长安郡3室2厅2卫户型图

3室2厅2卫

待售

售价待定

均价

售价待定

建面

143m²

朝向

北|南

分布

-

描述

【采光通风】每个房间都有采光通风的窗户,让整个房子都很通透明亮。

所属楼盘

众邦长安郡

项目地址

凤城一路明光路以西

楼盘信息仅供参考,请以开发商公示为准
平台展示的房源、户型图等信息由第三方提供或根据第三方提供的资料提供的非标准图样、数据,仅供参考,具体以房产证载明信息、您委托的专业机构测量结果或房屋交易合同中披露的信息为准,请您谨慎核查。