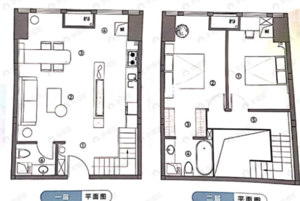
华中国际广场云邸3室2厅2卫户型图

3室2厅2卫

在售

140万/套

均价

14285元/平

建面

98m²

朝向

南|北

分布

1号楼

描述

【格局形态】户型方正,使空间可以更好的布局使用,便于后期装修及摆放家具。

所属楼盘

华中国际广场云邸

项目地址

黄孝河路与发展大道交汇处

楼盘信息仅供参考,请以开发商公示为准
平台展示的房源、户型图等信息由第三方提供或根据第三方提供的资料提供的非标准图样、数据,仅供参考,具体以房产证载明信息、您委托的专业机构测量结果或房屋交易合同中披露的信息为准,请您谨慎核查。