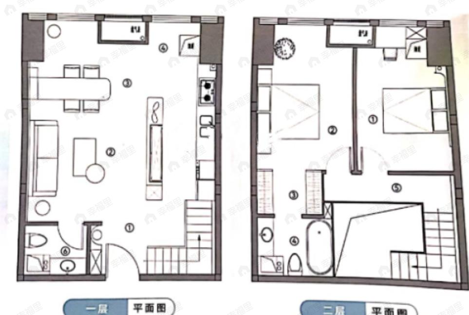
华中国际广场云邸1室1厅2卫户型图华中国际广场云邸1室1厅2卫户型图

1室1厅2卫

在售

160万/套

均价

19047元/平

建面

84m²

朝向

西

分布

2号楼

描述

【功能分区】动静分区,在房间休息或学习时,也不会受到动区声音的干扰。

所属楼盘

华中国际广场云邸

项目地址

黄孝河路与发展大道交汇处

楼盘信息仅供参考,请以开发商公示为准
平台展示的房源、户型图等信息由第三方提供或根据第三方提供的资料提供的非标准图样、数据,仅供参考,具体以房产证载明信息、您委托的专业机构测量结果或房屋交易合同中披露的信息为准,请您谨慎核查。