

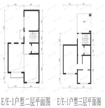
4室2厅3卫
约835万/套
均价
39761元/平
建面
210m²
朝向
南|北
分布
13号楼、14号楼
描述
【采光通风】房子南北方向均有窗户,打开窗户可使空气在房间中更快的流动,南北房间冷热交叉循环,有利于散热。 【格局形态】户型格局方正,开间进深比例合理,没有溢出的边角,居住起来较为舒适。 【功能分区】洗漱区和洗手间分离,洗漱和上洗手间可以单独行动,互不干扰,提升居住便利度。
所属楼盘
北京城建北京合院
项目地址
燕京街与通顺路交汇口东800米(仁和公园南)
楼盘信息仅供参考,请以开发商公示为准
平台展示的房源、户型图等信息由第三方提供或根据第三方提供的资料提供的非标准图样、数据,仅供参考,具体以房产证载明信息、您委托的专业机构测量结果或房屋交易合同中披露的信息为准,请您谨慎核查。




