

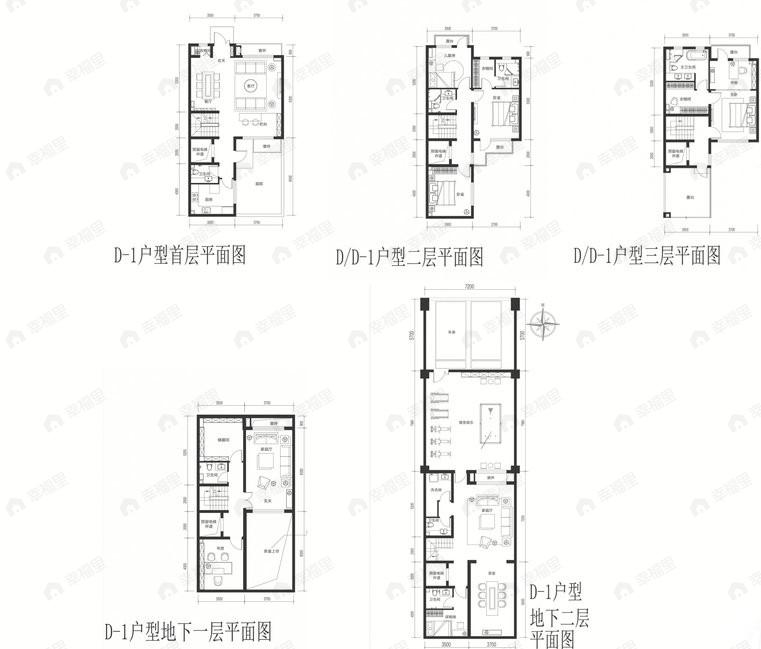
5室2厅4卫
约1000万/套
均价
35971元/平
建面
278m²
朝向
北|南
分布
14号楼、13号楼
描述
【采光通风】房子南北方向均有窗户,开窗时形成空气对流,帮助房间通风换气,两面都能采光,房间更加明亮。
所属楼盘
北京城建北京合院
项目地址
燕京街与通顺路交汇口东800米(仁和公园南)
楼盘信息仅供参考,请以开发商公示为准
平台展示的房源、户型图等信息由第三方提供或根据第三方提供的资料提供的非标准图样、数据,仅供参考,具体以房产证载明信息、您委托的专业机构测量结果或房屋交易合同中披露的信息为准,请您谨慎核查。



