
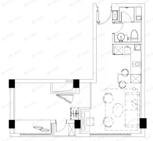
1室1厅1卫
约140万/套
均价
25454元/平
建面
55m²
朝向
南
分布
4#
描述
【采光通风】全南向采光,避免了潮湿发霉问题。只要打开窗户就可以晒被子。 【功能分区】动静分区,在房间休息或学习时,也不会受到动区声音的干扰。
所属楼盘
金融街融御滨江公寓
项目地址
临江大道与彭刘杨西路交汇处
楼盘信息仅供参考,请以开发商公示为准
平台展示的房源、户型图等信息由第三方提供或根据第三方提供的资料提供的非标准图样、数据,仅供参考,具体以房产证载明信息、您委托的专业机构测量结果或房屋交易合同中披露的信息为准,请您谨慎核查。


