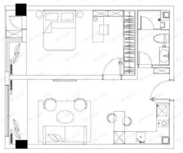
金融街融御滨江公寓1室1厅1卫户型图金融街融御滨江公寓1室1厅1卫户型图

1室1厅1卫

售罄

181万/套

均价

25492元/平

建面

71m²

朝向

西

分布

4#

描述

【功能分区】动静分离,能放心的在动区活动,不用担心打扰到休息或学习的人。

所属楼盘

金融街融御滨江公寓

项目地址

临江大道与彭刘杨西路交汇处

楼盘信息仅供参考,请以开发商公示为准
平台展示的房源、户型图等信息由第三方提供或根据第三方提供的资料提供的非标准图样、数据,仅供参考,具体以房产证载明信息、您委托的专业机构测量结果或房屋交易合同中披露的信息为准,请您谨慎核查。