商业是城市的生命力,均衡着城市的发展潜力。
尤其,作为新兴发展起来的区域和板块,商业配套的全面升级,更是需求迫切,类如发展势头正开足马力的兰州彭家坪。
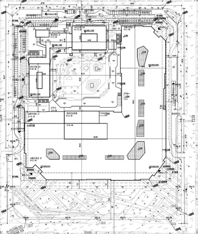
近日,兰州市自然资源局发布了彭家坪华润万象汇项目(GQ1801地块)的建筑工程设计方案总平面图。
根据公示,项目用地面积:49210㎡,建筑面积:218411㎡。项目位于彭家坪中央生态公园西北方向,临靠龙湖、保利商业地块。

万象汇建筑工程设计方案总平面图 ©自然资源局
由总平面图可知,华润万象汇项目规划有两栋写字楼,其中1#写字楼建筑层数为36F,高173.6米;2#写字楼建筑层数为27F,高98.2米;两栋写字楼之间规划了两层高13.2米的商业裙楼,且完全相连,形成一个大的商业体。
毫无疑问,这两栋写字楼的高度,将刷新彭家坪的天际线,成为全新的地标建筑,见证和推动彭家坪的发展之路。
同时,项目还规划有3处集中商业,其中一处建筑层数为3F,高16.4米;另外2处集中商业建筑层数为4F,高21.8米,预计是未来的商业茂。
值得注意的是,在各类业态围合的中心区,还规划了一个大面积的下沉式活动广场。
可以预见,未来这里将会成为一个沉浸式体验的创新商业形态,一个乐享天地与趣味社交的集合空间。
华润万象汇项目继今年年初正式开建后,3月公示了其基坑开挖支护工程平面,再到此次的新动态,这也意味着项目整体正在有序推动中。
万象商业作为华润集团旗下开发的高品质购物中心,是中国购物中心行业的领跑者,万象商业力推“一站式”消费和“体验式”购物。
一个区域的商业中心,代言了这个板块的未来发展潜力。
华润万象汇的落地,对彭家坪乃至整个七里河区的商业格局来说,都意义重大。
因为它不仅可以完善板块的商业配套功能,提升板块的形象和品质,还将和区域内保利、龙湖的商业项目共振,成为拉动经济增长、提升区域竞争力的全新载体。

彭家坪项目及产业分布图 制图@指兰针
大型房企先后进驻,基础配套逐步完善,生机盎然的商业版图已然开启,彭家坪的整体发展势头表现得愈发稳健。
综合来看,经历数年蛰伏期,兰州彭家坪,此时正站在价值爆发的前夕。