打开幸福里APP
省心挑好房,先上幸福里
立即打开
整租·江与城(原山)
整租·江与城(原山)
整租·江与城(原山)
1/15
18000
元/月

整租·江与城(原山)

房源发布机构
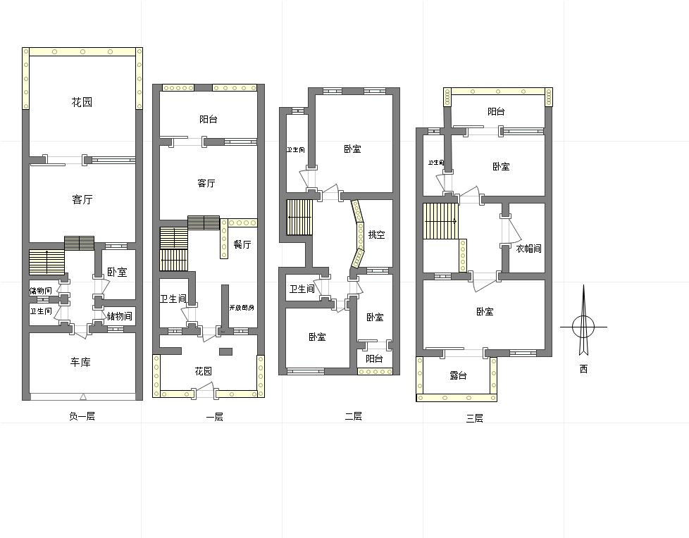
5室2厅5卫
户型
235.69㎡
面积
低 | 共1层
楼层
西
朝向
新上
有阳台
绿化率高
租期
详情咨询经纪人
咨询租期
看房
随时看房
预约看房
小区江与城(原山)
在租4套
保障
签约付款注意事项
交易贴士
更多最新动态和优惠信息
咨询详情
交易贴士
1.核实房产证
房东证件看仔细,别帮骗子钞票印
2.杜绝网络骗局
中介吹得再多好,实地看房不能少
3.拒绝提前交定金
莫为小利慌手脚,定金签后才能交
4.防范乱收费
正规收费没问题,签前要钱有点迷
5.小心合同陷阱
合同权益要牢记,别让漏洞把人欺
房源配置
洗衣机
空调
冰箱
热水器
电视
衣柜
暖气
宽带
天然气
位置及周边配套
位置
[渝北-大竹林]江与城(原山)
交通
教育
医疗
生活
休闲
附近设施较少,请咨询经纪人
咨询经纪人更多相关信息
去咨询
小区介绍
详情
江与城(原山)
渝北-大竹林 | 2008年-2017年建
18000
元/月起
预约咨询
房源
配置
周边
小区