打开幸福里APP
省心挑好房,先上幸福里
立即打开
整租·苏庄一里
整租·苏庄一里
整租·苏庄一里
1/13
4500
元/月

整租·苏庄一里

房源发布机构
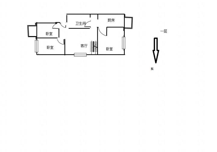
4室2厅2卫
户型
171㎡
面积
高 | 共6层
楼层
南北
朝向
新上
近地铁
有阳台
双卫生间
集中供暖
南北通透
电梯
无电梯
年代
2002年建成
租期
详情咨询经纪人
咨询租期
看房
随时看房
预约看房
小区苏庄一里
在租9套
保障
签约付款注意事项
交易贴士
更多最新动态和优惠信息
咨询详情
交易贴士
1.核实房产证
房东证件看仔细,别帮骗子钞票印
2.杜绝网络骗局
中介吹得再多好,实地看房不能少
3.拒绝提前交定金
莫为小利慌手脚,定金签后才能交
4.防范乱收费
正规收费没问题,签前要钱有点迷
5.小心合同陷阱
合同权益要牢记,别让漏洞把人欺
房源配置
洗衣机
空调
冰箱
热水器
电视
衣柜
暖气
宽带
天然气
位置及周边配套
位置
[房山-良乡]苏庄一里
交通
教育
医疗
生活
休闲
附近设施较少,请咨询经纪人
咨询经纪人更多相关信息
去咨询
小区介绍
详情
苏庄一里
房山-良乡 | 1990年-2005年建
2200
元/月起
预约咨询
房源
配置
周边
小区