打开幸福里找房APP
选好房,就上幸福里找房
立即打开
1/10
4000
元/月
反馈
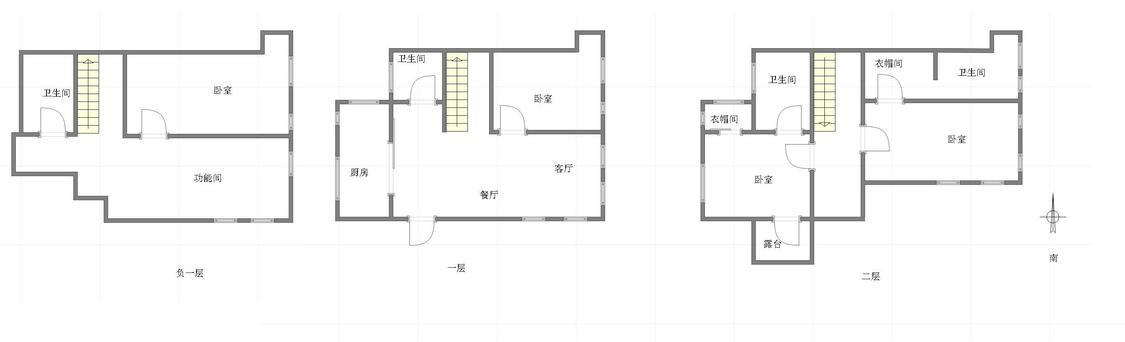
整租·天景山院里
房源发布机构
4室2厅4卫
户型
252㎡
面积
低 | 共1层
楼层
南北
朝向
近地铁
有阳台
南北通透
绿化率高
租期
详情咨询经纪人
咨询租期
看房
随时看房
预约看房
小区
天景山院里
在租1套
保障
签约付款注意事项
交易贴士
更多最新动态和优惠信息
咨询详情
交易贴士
1.核实房产证
房东证件看仔细,别帮骗子钞票印
2.杜绝网络骗局
中介吹得再多好,实地看房不能少
3.拒绝提前交定金
莫为小利慌手脚,定金签后才能交
4.防范乱收费
正规收费没问题,签前要钱有点迷
5.小心合同陷阱
合同权益要牢记,别让漏洞把人欺
房源配置
洗衣机
空调
冰箱
热水器
电视
衣柜
床
暖气
宽带
天然气
位置及周边配套
位置
[南岸-七公里]天景山院里
交通
教育
医疗
生活
休闲
附近设施较少,请咨询经纪人
咨询经纪人更多相关信息
去咨询
小区介绍
详情
天景山院里
南岸-七公里 | 2005年-2013年建
4000
元/月起
预约咨询
房源
配置
周边
小区