

国采中心
均价
售价待定
总价
110万/套起
用途
商业
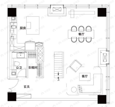
户型
2居
建面
86-114平
装修
毛坯
[东湖高新-光谷东]高新大道与光谷六路交汇处(中国光谷科技会展中心东侧)
变价通知
开盘通知
平台展示的房源、户型图等信息由第三方提供或根据第三方提供的资料提供的非标准图样、数据,仅供参考,具体以房产证载明信息、您委托的专业机构测量结果或房屋交易合同中披露的信息为准,请您谨慎核查。


均价
售价待定
总价
110万/套起
用途
商业
户型
2居
建面
86-114平
装修
毛坯
变价通知
开盘通知