

檀悦府
均价
43200元/平
用途
住宅
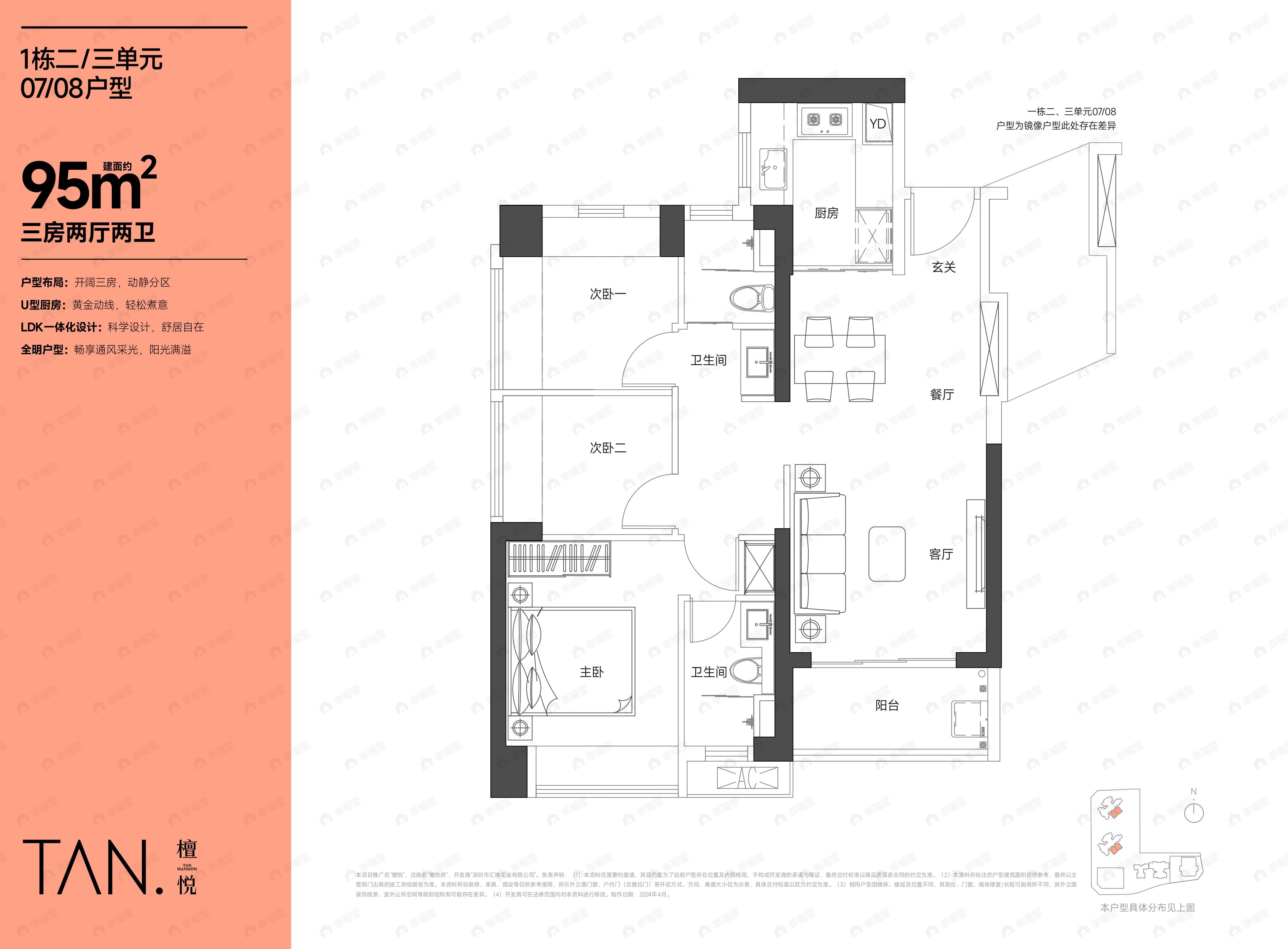
户型
3/4居
建面
81-116平
装修
未知
产权年限
70年
[龙华-龙华中心区]深圳市龙华区工业路与俊龙路交汇处约100米
变价通知
开盘通知
与置业顾问沟通底价
陈慧乐有家
业务精英
闪电回复
好评如潮
陈凌桓乐有家
业务精英
闪电回复
好评如潮
平台展示的房源、户型图等信息由第三方提供或根据第三方提供的资料提供的非标准图样、数据,仅供参考,具体以房产证载明信息、您委托的专业机构测量结果或房屋交易合同中披露的信息为准,请您谨慎核查。


均价
43200元/平
用途
住宅
户型
3/4居
建面
81-116平
装修
未知
产权年限
70年
变价通知
开盘通知