

鎏嘉码头云顶公寓
价格
28000元/平起
总价
89万/套起
用途
公寓
户型
1/2居
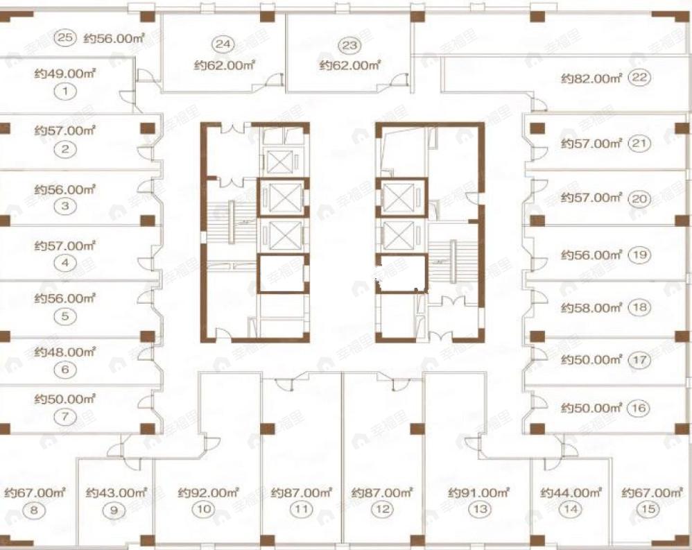
建面
44-93平
装修
毛坯
[江北-五里店]北滨路鎏嘉码头A区云嵿公寓一楼(刘家台公交站背后)
变价通知
开盘通知
平台展示的房源、户型图等信息由第三方提供或根据第三方提供的资料提供的非标准图样、数据,仅供参考,具体以房产证载明信息、您委托的专业机构测量结果或房屋交易合同中披露的信息为准,请您谨慎核查。
价格
28000元/平起
总价
89万/套起
用途
公寓
户型
1/2居
建面
44-93平
装修
毛坯
变价通知
开盘通知