

嘉华天珺
价格
76000元/平起
用途
住宅
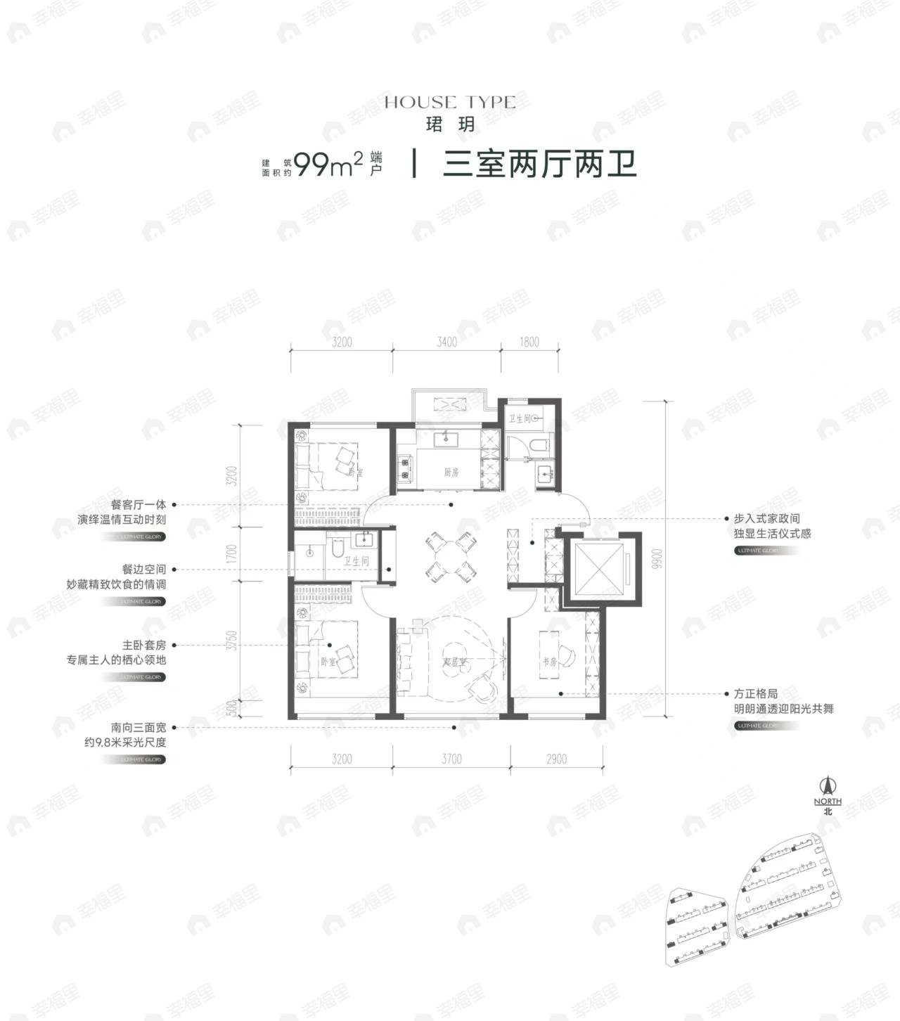
户型
3/4居
建面
88-172平
装修
未知
产权年限
70年
[海淀-西北旺]大牛房二环路与大牛房五巷交叉口北80米
变价通知
开盘通知
平台展示的房源、户型图等信息由第三方提供或根据第三方提供的资料提供的非标准图样、数据,仅供参考,具体以房产证载明信息、您委托的专业机构测量结果或房屋交易合同中披露的信息为准,请您谨慎核查。


价格
76000元/平起
用途
住宅
户型
3/4居
建面
88-172平
装修
未知
产权年限
70年
变价通知
开盘通知