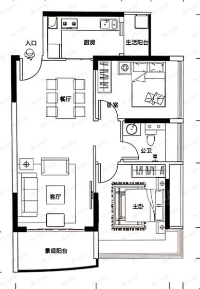
2室2厅1卫
在售
均价
6800元/平
建面
84m²
朝向
南
分布
-
描述
【采光通风】每个房间都有采光通风的窗户,让整个房子都很通透明亮。
所属楼盘
景泰蓝湾
项目地址
景泰二路与惠福街交叉口东北角
3室2厅2卫 111平