

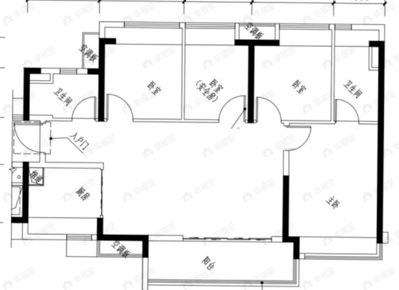
4室2厅2卫
约85万/套
均价
7589元/平
建面
112m²
朝向
南|北
分布
-
描述
【采光通风】客厅朝南日照足,光线好,冬季在客厅坐一坐让人有温暖的感觉。 【功能分区】动静分区,在房间休息或学习时,也不会受到动区声音的干扰。
所属楼盘
保利梦想城
项目地址
大旺大道北华师附属学校旁
楼盘信息仅供参考,请以开发商公示为准
平台展示的房源、户型图等信息由第三方提供或根据第三方提供的资料提供的非标准图样、数据,仅供参考,具体以房产证载明信息、您委托的专业机构测量结果或房屋交易合同中披露的信息为准,请您谨慎核查。




