1室
售罄
均价
35137元/平
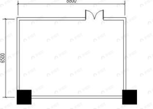
建面
188m²
朝向
东
分布
-
所属楼盘
坤元TIME中心
项目地址
太白南路20号
1室1厅 240平
在售
1室1厅 783平
1室1厅 88平
1室 98平
1室 129平