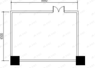
坤元TIME中心1室1厅户型图坤元TIME中心1室1厅户型图

1室1厅

在售

720万/套

均价

30000元/平

建面

240m²

朝向

东|北

分布

-

所属楼盘

坤元TIME中心

项目地址

太白南路20号

楼盘信息仅供参考,请以开发商公示为准
平台展示的房源、户型图等信息由第三方提供或根据第三方提供的资料提供的非标准图样、数据,仅供参考,具体以房产证载明信息、您委托的专业机构测量结果或房屋交易合同中披露的信息为准,请您谨慎核查。