
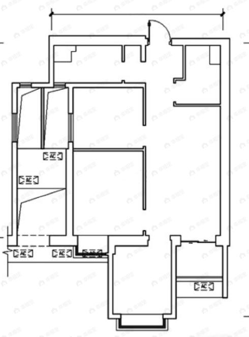
4室2厅2卫
约207万/套
均价
12937元/平
建面
160m²
朝向
南|北
分布
38号楼
描述
【采光通风】南北方向均有窗,开窗可使空气更快流动,南北房间冷热交叉循环。客厅朝南,保证客厅可以有充足的阳光照射,使客厅更加明亮。
所属楼盘
中国铁建万科翡翠国际
项目地址
曲江大道路东
楼盘信息仅供参考,请以开发商公示为准
平台展示的房源、户型图等信息由第三方提供或根据第三方提供的资料提供的非标准图样、数据,仅供参考,具体以房产证载明信息、您委托的专业机构测量结果或房屋交易合同中披露的信息为准,请您谨慎核查。

