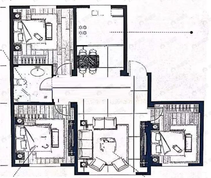
雷凯铂庭3室2厅1卫户型图雷凯铂庭3室2厅1卫户型图

3室2厅1卫

售罄

139万/套

均价

13495元/平

建面

103m²

朝向

北|南

分布

-

描述

【采光通风】南北方向均有窗,两面采光,开窗时形成对流,给房间通风换气。

所属楼盘

雷凯铂庭

项目地址

怒江北街与青城山路交汇处

楼盘信息仅供参考,请以开发商公示为准
平台展示的房源、户型图等信息由第三方提供或根据第三方提供的资料提供的非标准图样、数据,仅供参考,具体以房产证载明信息、您委托的专业机构测量结果或房屋交易合同中披露的信息为准,请您谨慎核查。