
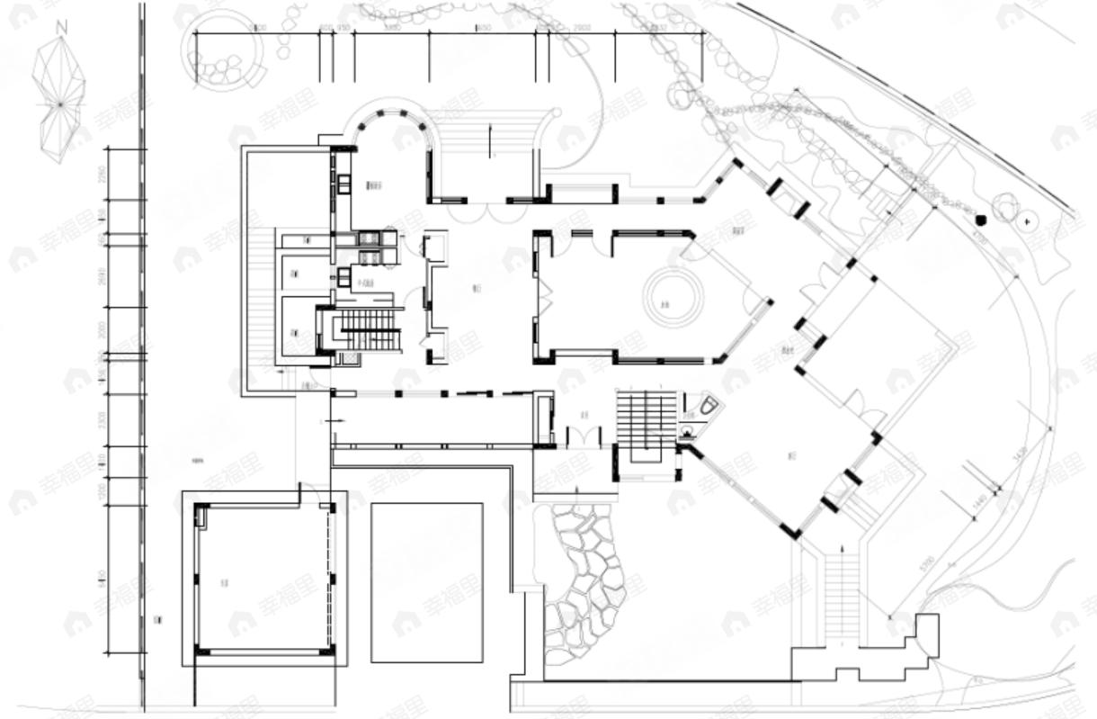
4室2厅6卫
约3839万/套
均价
105178元/平
建面
365m²
朝向
南
分布
-
描述
户型优点: 【采光&通风】1.每个房间都有窗,保证日间任意房间都有自然光。2.客厅和餐厅贯穿南北,室内视野更开阔,开窗时可在房屋中间形成穿堂风,冬暖夏凉。 【布局】1.卫生间数量合理,可供五口之家同时洗漱。2.格局方正,方便后家具摆放,利于后期空间改造。 【功能空间配置】1.有露台可举行户外烧烤。2.房屋带阁楼,可改造成健身房、私人图书馆等。3.有衣帽间,保证室内环境整齐,提升居住舒适度。4.有专门储物的房间。5.有晾晒衣物的阳台。6. 进门处有玄关,保证居住私密性,增加入户仪式感。 户型缺点: 1.公摊大
所属楼盘
嘉凯城曼荼园
项目地址
昆公路333弄
楼盘信息仅供参考,请以开发商公示为准
平台展示的房源、户型图等信息由第三方提供或根据第三方提供的资料提供的非标准图样、数据,仅供参考,具体以房产证载明信息、您委托的专业机构测量结果或房屋交易合同中披露的信息为准,请您谨慎核查。




