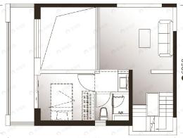
3室3厅3卫
待售
均价
14967元/平
建面
155m²
朝向
西
分布
-
描述
【格局形态】户型方正,使空间可以更好的布局使用,便于后期装修及摆放家具。
所属楼盘
筑友天誉府
项目地址
官南大道中段小街地铁站旁
3室2厅1卫 89平
在售
3室2厅2卫 101平
3室1厅2卫 125平
3室3厅3卫 158平
4室1厅2卫 143平