• 全部(3)
  • 1室(3)
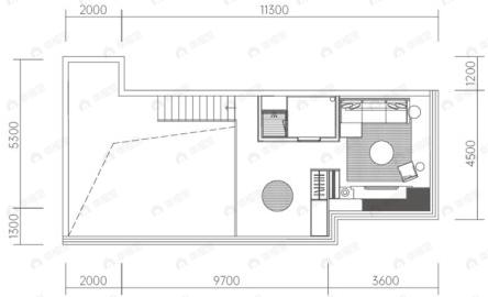
1室1厅1卫建面61平南户型图

1室1厅1卫

约150万/套

建面 61平 | 南

在售

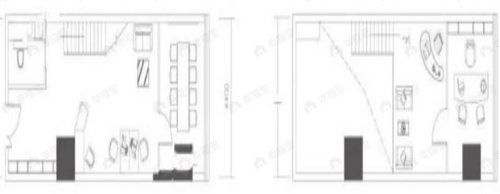
1室1厅1卫建面70平南户型图

1室1厅1卫

约177万/套

建面 70平 | 南

在售

1室1厅1卫建面77平南户型图

1室1厅1卫

约190万/套

建面 77平 | 南

在售

询底价