鎏嘉码头云顶公寓1室1厅1卫户型图鎏嘉码头云顶公寓1室1厅1卫户型图

1室1厅1卫

售罄

89万/套

均价

20227元/平

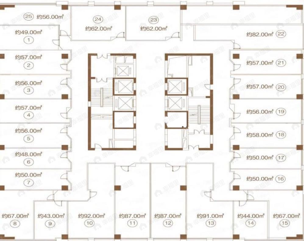
建面

44m²

朝向

分布

-

描述

【采光通风】每个房间都有采光通风的窗户,让整个房子都很通透明亮。 【格局形态】户型开间进深比例合理,没有溢出的边角,居住起来较为舒适。 【功能分区】动静分离,能放心的在动区活动,不用担心打扰到休息或学习的人。

所属楼盘

鎏嘉码头云顶公寓

项目地址

北滨路鎏嘉码头A区云嵿公寓一楼(刘家台公交站背后)

楼盘信息仅供参考,请以开发商公示为准
平台展示的房源、户型图等信息由第三方提供或根据第三方提供的资料提供的非标准图样、数据,仅供参考,具体以房产证载明信息、您委托的专业机构测量结果或房屋交易合同中披露的信息为准,请您谨慎核查。