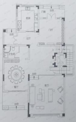
中建御湖壹号5室3厅4卫户型图中建御湖壹号5室3厅4卫户型图

5室3厅4卫

售罄

1000万/套

均价

16393元/平

建面

610m²

朝向

分布

御墅S4号楼/16号楼

描述

【采光通风】南北方向均有窗,两面采光,开窗时形成对流,给房间通风换气。

所属楼盘

中建御湖壹号

项目地址

九龙坡区冬山路7号(双山公园旁)

楼盘信息仅供参考,请以开发商公示为准
平台展示的房源、户型图等信息由第三方提供或根据第三方提供的资料提供的非标准图样、数据,仅供参考,具体以房产证载明信息、您委托的专业机构测量结果或房屋交易合同中披露的信息为准,请您谨慎核查。