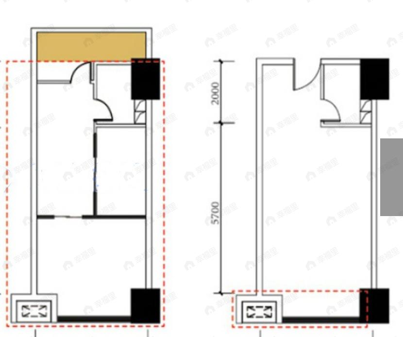
中甬优米优米2室1厅2卫户型图中甬优米优米2室1厅2卫户型图

2室1厅2卫

售罄

54万/套

均价

13500元/平

建面

40m²

朝向

分布

1号楼

所属楼盘

中甬优米优米

项目地址

大渡口松青路1066号(柏华街与松青路交汇处)

楼盘信息仅供参考,请以开发商公示为准
平台展示的房源、户型图等信息由第三方提供或根据第三方提供的资料提供的非标准图样、数据,仅供参考,具体以房产证载明信息、您委托的专业机构测量结果或房屋交易合同中披露的信息为准,请您谨慎核查。