
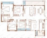
4室2厅2卫
约236万/套
均价
16619元/平
建面
142m²
朝向
南
分布
27栋、30栋、33栋、35栋
描述
【格局形态】户型方正,使空间可以更好的布局使用,便于后期装修及摆放家具。
所属楼盘
川网国际花园
项目地址
白衣上街二段266号
楼盘信息仅供参考,请以开发商公示为准
平台展示的房源、户型图等信息由第三方提供或根据第三方提供的资料提供的非标准图样、数据,仅供参考,具体以房产证载明信息、您委托的专业机构测量结果或房屋交易合同中披露的信息为准,请您谨慎核查。

4室2厅2卫
均价
16619元/平
建面
142m²
朝向
南
分布
27栋、30栋、33栋、35栋
描述
【格局形态】户型方正,使空间可以更好的布局使用,便于后期装修及摆放家具。
所属楼盘
川网国际花园
项目地址
白衣上街二段266号