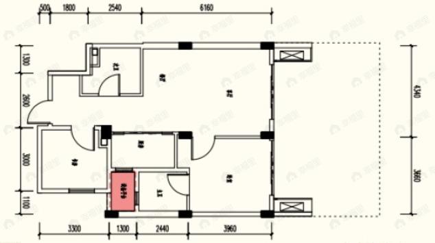
中国青城国际颐养中心2室2厅2卫户型图中国青城国际颐养中心2室2厅2卫户型图

2室2厅2卫

在售

115万/套

均价

12921元/平

建面

89m²

朝向

北|东|西|南

分布

(二期)1号楼、(二期)2号楼、(二期)3号楼、(二期)8号楼

描述

优势 【布局】1.餐厅与客厅相连,室内视野更开阔。,【功能空间配置】1.配置额外功能间,空间设置灵活,可作为书房、娱乐室或改造成双儿童房,照顾二胎家庭。2.阳台面积充裕,有活动空间。 不足 【布局】1.公摊大

所属楼盘

中国青城国际颐养中心

项目地址

川西旅游环线中国青城国际颐养中心

楼盘信息仅供参考,请以开发商公示为准
平台展示的房源、户型图等信息由第三方提供或根据第三方提供的资料提供的非标准图样、数据,仅供参考,具体以房产证载明信息、您委托的专业机构测量结果或房屋交易合同中披露的信息为准,请您谨慎核查。