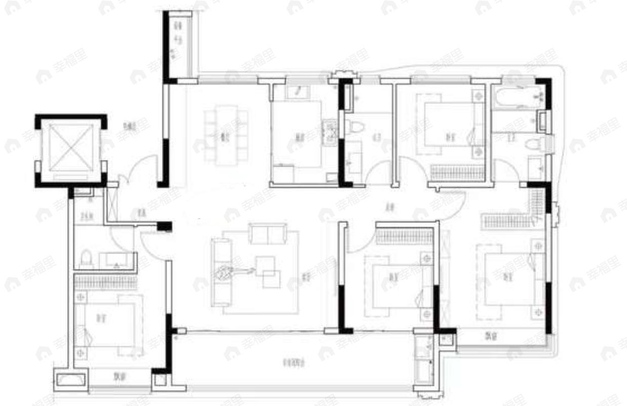
滨投置地璟玺3室2厅2卫户型图

3室2厅2卫

售罄

370万/套

均价

23566元/平

建面

157m²

朝向

分布

-

描述

【格局形态】户型开间进深比例合理,没有溢出的边角,居住起来较为舒适。

所属楼盘

滨投置地璟玺

项目地址

徽州大道与殷汇路交口东北角

楼盘信息仅供参考,请以开发商公示为准
平台展示的房源、户型图等信息由第三方提供或根据第三方提供的资料提供的非标准图样、数据,仅供参考,具体以房产证载明信息、您委托的专业机构测量结果或房屋交易合同中披露的信息为准,请您谨慎核查。