

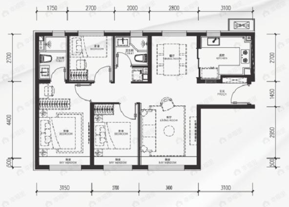
3室2厅2卫
约609万/套
均价
60346元/平
建面
101m²
朝向
北|南
分布
-
描述
【采光通风】南北方向均有窗,更利于通风采光,避免房间潮湿和闷热的问题。 【功能分区】户型动静分区分布合理,避免声音干扰,提高私密性,活动便捷
所属楼盘
越秀星樾
项目地址
北京市昌平区朱辛庄地铁站北600米
楼盘信息仅供参考,请以开发商公示为准
平台展示的房源、户型图等信息由第三方提供或根据第三方提供的资料提供的非标准图样、数据,仅供参考,具体以房产证载明信息、您委托的专业机构测量结果或房屋交易合同中披露的信息为准,请您谨慎核查。




