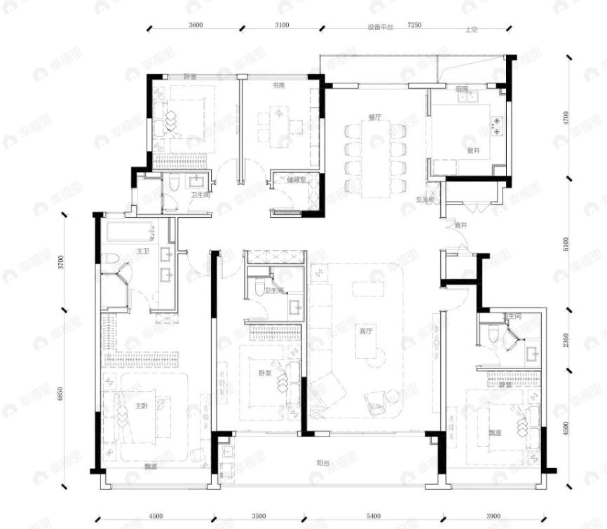
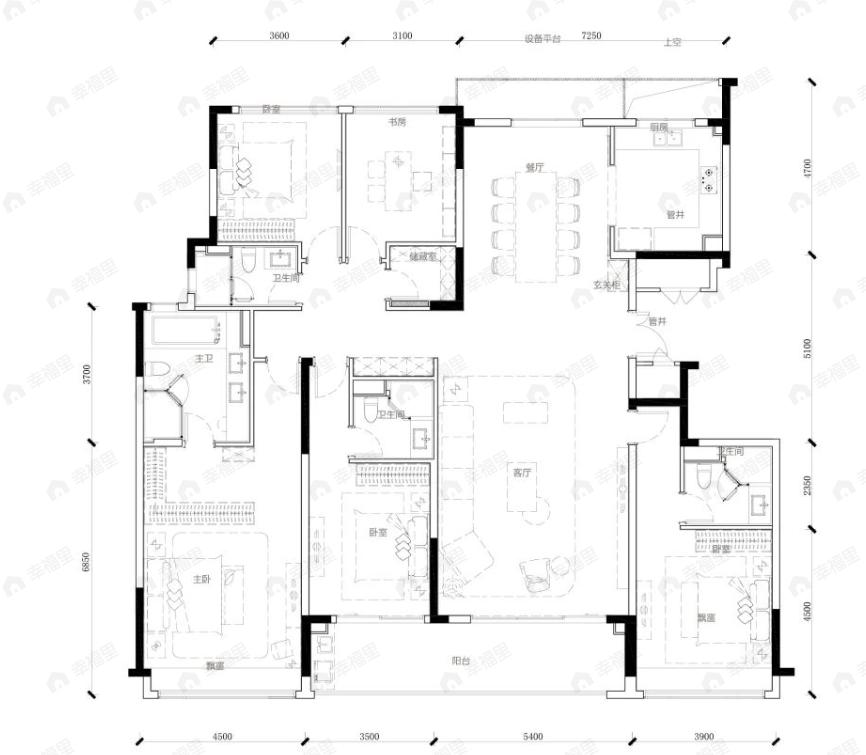
滨江枫映华庭5室2厅4卫户型图滨江枫映华庭5室2厅4卫户型图

5室2厅4卫

售罄

900万/套

均价

34883元/平

建面

258m²

朝向

分布

-

描述

【格局形态】户型开间进深比例合理,没有溢出的边角,居住起来较为舒适。

所属楼盘

滨江枫映华庭

项目地址

万金路与文良线交叉口西40米

楼盘信息仅供参考,请以开发商公示为准
平台展示的房源、户型图等信息由第三方提供或根据第三方提供的资料提供的非标准图样、数据,仅供参考,具体以房产证载明信息、您委托的专业机构测量结果或房屋交易合同中披露的信息为准,请您谨慎核查。