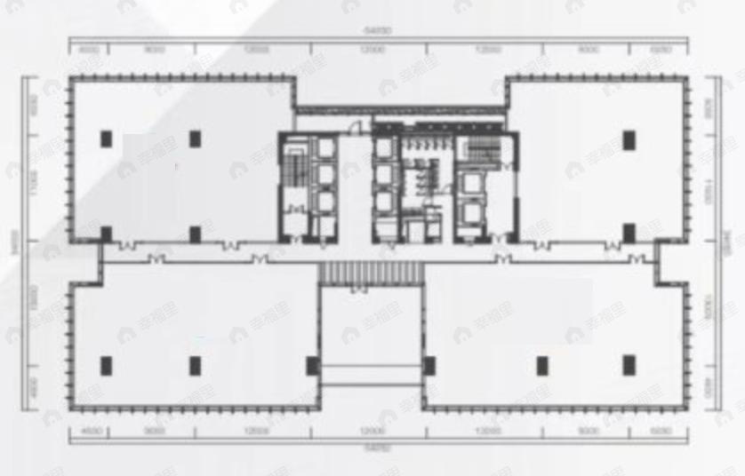
光明云谷一期1室1厅户型图

1室1厅

待售

售价待定

均价

售价待定

建面

423m²

朝向

分布

-

所属楼盘

光明云谷一期

项目地址

圳园路与圳美二路交汇处

楼盘信息仅供参考,请以开发商公示为准
平台展示的房源、户型图等信息由第三方提供或根据第三方提供的资料提供的非标准图样、数据,仅供参考,具体以房产证载明信息、您委托的专业机构测量结果或房屋交易合同中披露的信息为准,请您谨慎核查。