
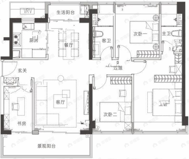
4室2厅2卫
约566万/套
均价
45300元/平
建面
125m²
朝向
南
分布
13#、12#、11#、2#
描述
【采光通风】南北方向均有窗,两面采光,开窗时形成对流,给房间通风换气。每个房间都有采光通风的窗户,让整个房子都很通透明亮。
所属楼盘
深业颐瑞府
项目地址
新湖街道规划翠辉路与狮山一街路交界
楼盘信息仅供参考,请以开发商公示为准
平台展示的房源、户型图等信息由第三方提供或根据第三方提供的资料提供的非标准图样、数据,仅供参考,具体以房产证载明信息、您委托的专业机构测量结果或房屋交易合同中披露的信息为准,请您谨慎核查。