

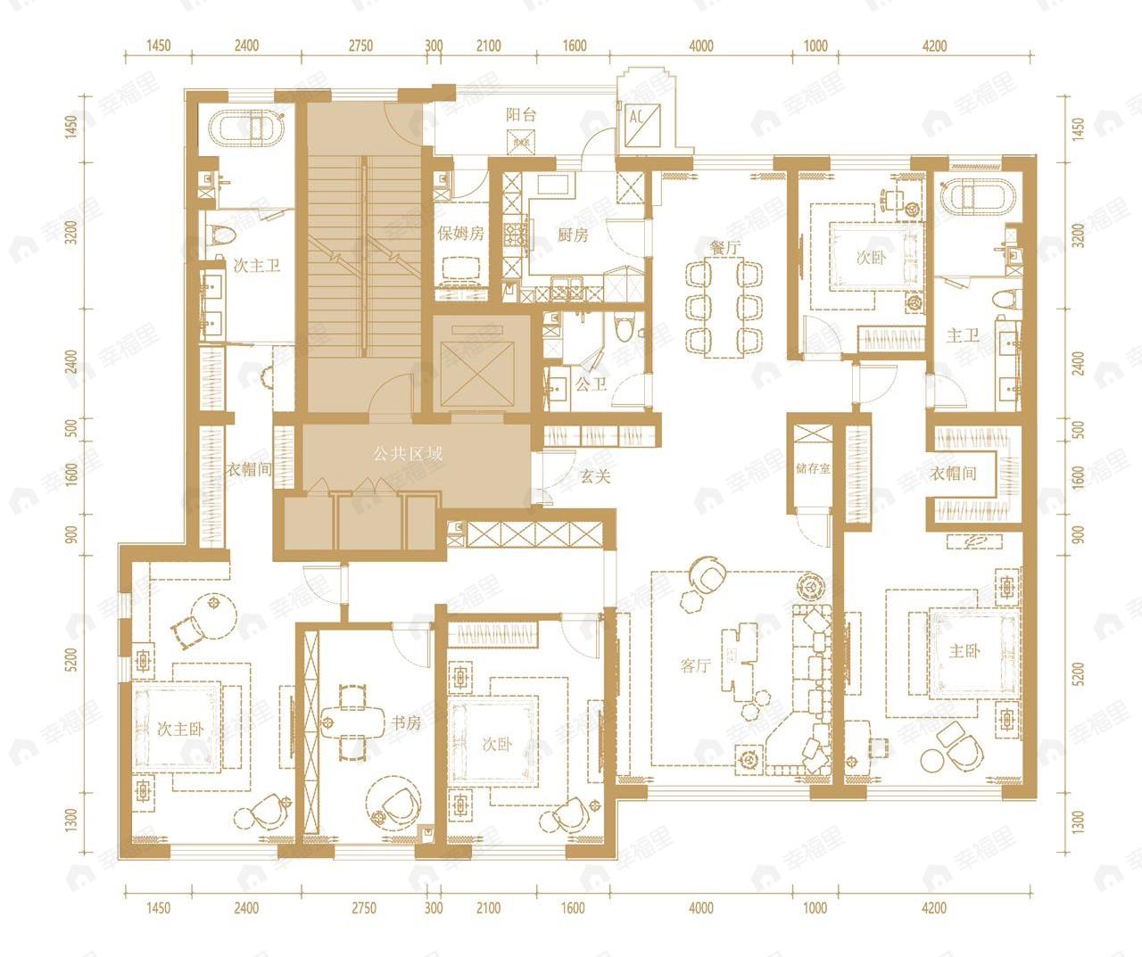
5室2厅3卫
约3407万/套
均价
110977元/平
建面
307m²
朝向
北|南
分布
11#、C2
描述
【采光通风】南北方向均有窗,两面采光,开窗时形成对流,给房间通风换气。 【格局形态】户型隐私性好,整体设计保证了住户的私密性,居住更加安心舒适。 【功能分区】动静分区,在房间休息或学习时,也不会受到动区声音的干扰。
所属楼盘
天润福熙大道
项目地址
清河营东路1号院, 清河营东路3号院
楼盘信息仅供参考,请以开发商公示为准
平台展示的房源、户型图等信息由第三方提供或根据第三方提供的资料提供的非标准图样、数据,仅供参考,具体以房产证载明信息、您委托的专业机构测量结果或房屋交易合同中披露的信息为准,请您谨慎核查。



