
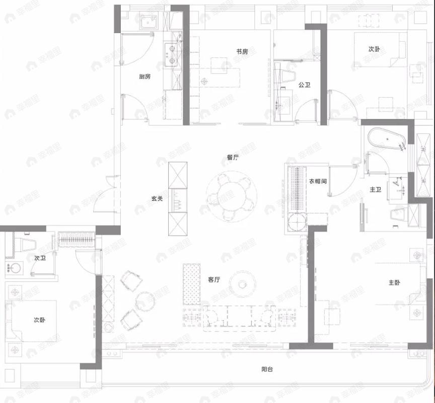
4室2厅3卫
约640万/套
均价
36994元/平
建面
173m²
朝向
南|北
分布
2号楼
描述
【采光通风】房子南北方向均有窗户,开窗时形成空气对流,帮助房间通风换气,两面都能采光,房间更加明亮。
所属楼盘
武汉城建光彩国际
项目地址
徐新路269号
楼盘信息仅供参考,请以开发商公示为准
平台展示的房源、户型图等信息由第三方提供或根据第三方提供的资料提供的非标准图样、数据,仅供参考,具体以房产证载明信息、您委托的专业机构测量结果或房屋交易合同中披露的信息为准,请您谨慎核查。

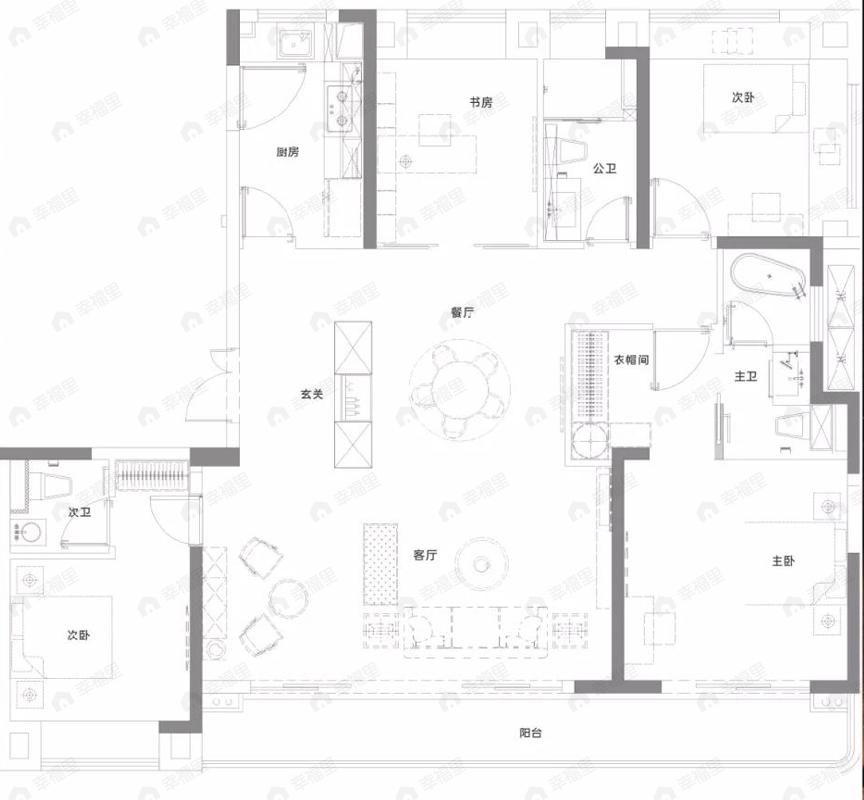
4室2厅3卫
均价
36994元/平
建面
173m²
朝向
南|北
分布
2号楼
描述
【采光通风】房子南北方向均有窗户,开窗时形成空气对流,帮助房间通风换气,两面都能采光,房间更加明亮。
所属楼盘
武汉城建光彩国际
项目地址
徐新路269号