

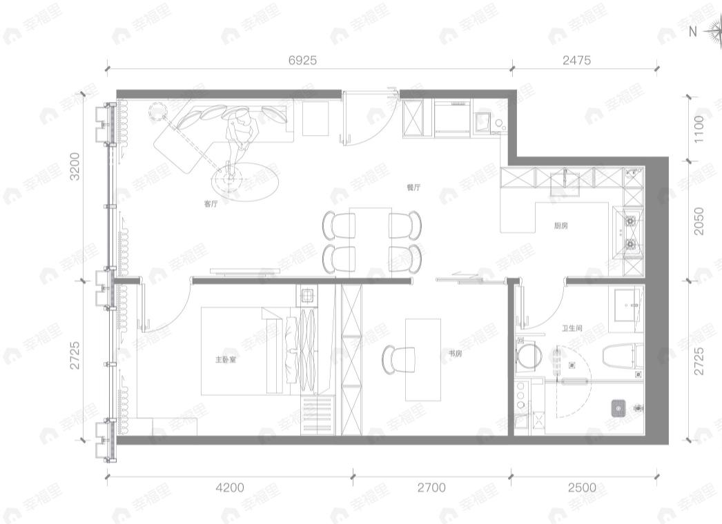
2室2厅1卫
约224万/套
均价
31549元/平
建面
71m²
朝向
北
分布
2号楼、3号楼
描述
【格局形态】户型方正,使空间可以更好的布局使用,便于后期装修及摆放家具。 【功能分区】动静分区,在房间休息或学习时,也不会受到动区声音的干扰。
所属楼盘
天资陸号院
项目地址
昊天北大街6号院
楼盘信息仅供参考,请以开发商公示为准
平台展示的房源、户型图等信息由第三方提供或根据第三方提供的资料提供的非标准图样、数据,仅供参考,具体以房产证载明信息、您委托的专业机构测量结果或房屋交易合同中披露的信息为准,请您谨慎核查。




