

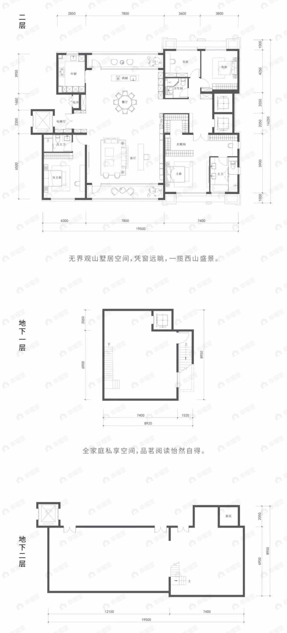
4室2厅3卫
约3300万/套
均价
61111元/平
建面
540m²
朝向
南|北
分布
14号楼、15号楼
描述
【采光通风】南北方向均有窗,两面采光,开窗时形成对流,给房间通风换气。 【格局形态】户型隐私性好,整体设计保证了住户的私密性,居住更加安心舒适。 【功能分区】户型动线分布合理,活动便捷,节省时间的同时提高了私密性。
所属楼盘
远洋源山春秋
项目地址
西小府街与金府北路交叉口东南140米
楼盘信息仅供参考,请以开发商公示为准
平台展示的房源、户型图等信息由第三方提供或根据第三方提供的资料提供的非标准图样、数据,仅供参考,具体以房产证载明信息、您委托的专业机构测量结果或房屋交易合同中披露的信息为准,请您谨慎核查。



