
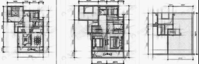
4室4厅4卫
约985万/套
均价
33965元/平
建面
290m²
朝向
南
分布
2期16号楼、2期25号楼、2期30号楼、2期22号楼、2期29号楼、2期27号楼、2期35号楼、2期31号楼、2期26号楼、2期33号楼、2期36号楼、2期17号楼、2期32号楼、2期21号楼、2期34号楼
描述
【采光通风】每个房间都有采光通风的窗户,让整个房子都很通透明亮。
所属楼盘
绿城凤起兰庭
项目地址
光华东五路69号
楼盘信息仅供参考,请以开发商公示为准
平台展示的房源、户型图等信息由第三方提供或根据第三方提供的资料提供的非标准图样、数据,仅供参考,具体以房产证载明信息、您委托的专业机构测量结果或房屋交易合同中披露的信息为准,请您谨慎核查。




