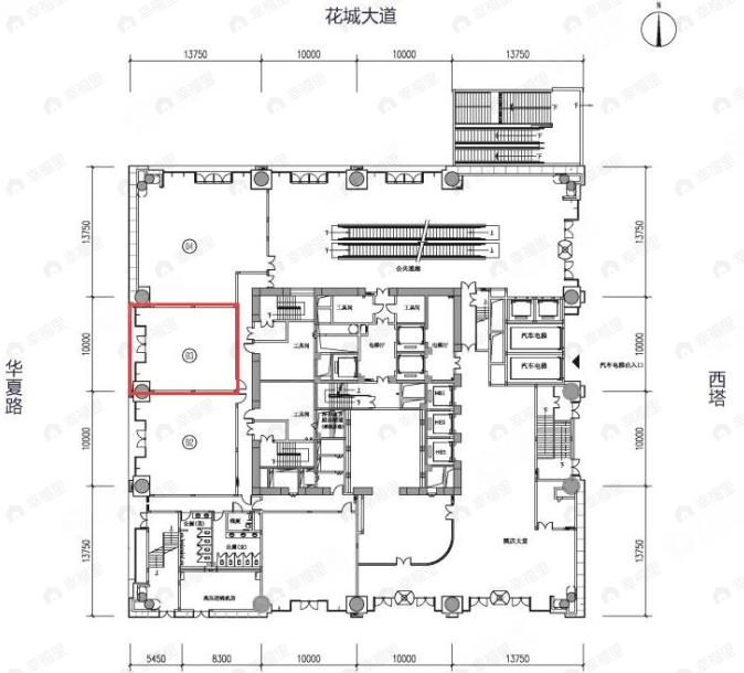
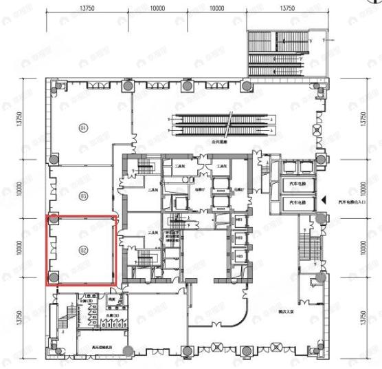
富力盈凯广场1室户型图

1室

售罄

1522万/套

均价

102837元/平

建面

148m²

朝向

西

分布

富力盈凯广场商铺

描述

优势 :各个功能区的尺寸比例规范,布局合理,能很好地满足日常功能需求,整体空间开阔,采光充足

所属楼盘

富力盈凯广场

项目地址

华夏路16号

楼盘信息仅供参考,请以开发商公示为准
平台展示的房源、户型图等信息由第三方提供或根据第三方提供的资料提供的非标准图样、数据,仅供参考,具体以房产证载明信息、您委托的专业机构测量结果或房屋交易合同中披露的信息为准,请您谨慎核查。