
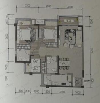
3室2厅2卫
约120万/套
均价
11764元/平
建面
102m²
朝向
南
分布
-
描述
【采光通风】卫生间有窗户,保证卫生间采光通风,避免发霉潮湿的问题。 【格局形态】户型方正,使空间可以更好的布局使用,便于后期装修及摆放家具。
所属楼盘
世茂璀璨天城
项目地址
金石大道333号
楼盘信息仅供参考,请以开发商公示为准
平台展示的房源、户型图等信息由第三方提供或根据第三方提供的资料提供的非标准图样、数据,仅供参考,具体以房产证载明信息、您委托的专业机构测量结果或房屋交易合同中披露的信息为准,请您谨慎核查。




